240 Macartney St, Midland, Ontario L4R 2J8
Contact us about this property
Highlights
Estimated valueThis is the price Wahi expects this property to sell for.
The calculation is powered by our Instant Home Value Estimate, which uses current market and property price trends to estimate your home’s value with a 90% accuracy rate.Not available
Price/Sqft$306/sqft
Monthly cost
Open Calculator
Description
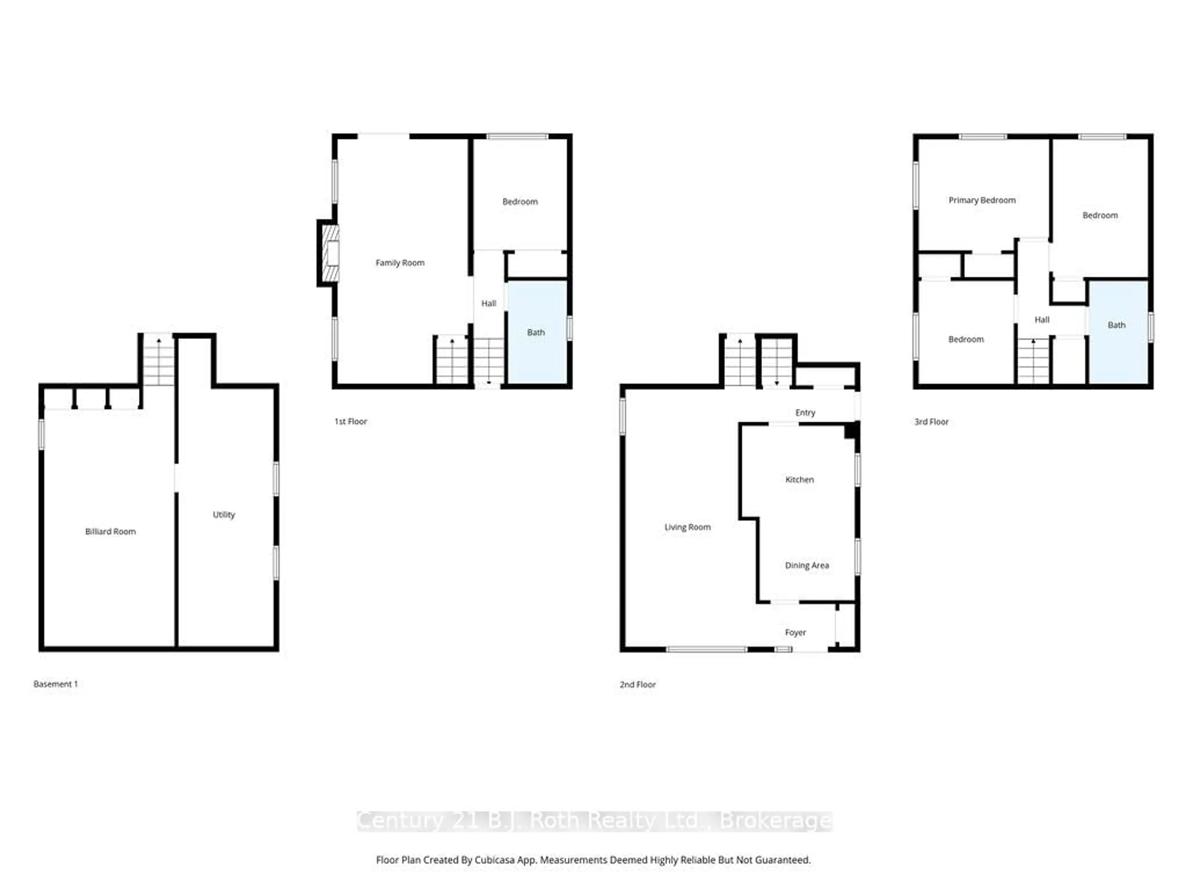
Welcome to 240 Macartney Street in beautiful Midland! This spacious 4-level back split offers a fantastic layout with room for the whole family to spread out and enjoy. A solid home with room to enhance and customize, the main level features an eat-in kitchen and the living room and dining area are perfect for everyday living and entertaining. Just a few steps down, the lower-level family room is warm and welcoming, complete with a cozy wood-burning fireplace and convenient walkout to the backyard. Step outside and enjoy your own private retreat! The fully fenced yard includes a swimming pool (no heater, has a safety cover, pump replaced in 2025), dedicated dog run/fenced area for kids away from the pool, and plenty of space for summer BBQs, kids, and pets. Upstairs you'll find comfortable bedrooms with ample natural light, while the basement rec room is ready for fun with a pool table included-ideal for game nights or hosting friends. Roof was done in 2016, furnace 2023. Additional features include a side entrance with a deck for your BBQ, 1-car garage, a multi-level layout offering functional separation of space, an established neighbourhood close to amenities such as schools, marinas, a library, rec centre, and hiking/walking/snowmobile trails. Whether you're looking for space to grow, entertain, or simply relax at home, this property offers incredible versatility and value.
Property Details
Interior
Features
Main Floor
Living
3.71 x 7.32Hardwood Floor
Dining
2.71 x 2.37Hardwood Floor
Foyer
2.26 x 1.22Kitchen
3.21 x 2.59Vinyl Floor
Exterior
Features
Parking
Garage spaces 1
Garage type Attached
Other parking spaces 4
Total parking spaces 5
Property History
35






