Home with brick exterior material, street for 24 Briar Knoll Pl, Kitchener Ontario N2E 2B9
10 days on Market

24 Briar Knoll Pl, Kitchener, Ontario N2E 2B9

Detached
3
2 + 1
~1524 sqft
$779,900
Get pre-qualifiedPowered by nesto
Detached
3
2 + 1
~1524 sqft

Contact us about this property

Call

Highlights

Property Estimate

Days on market10 days

Estimated valueNot available

Price/Sqft$511/sqft

Monthly cost

Open Calculator

Description

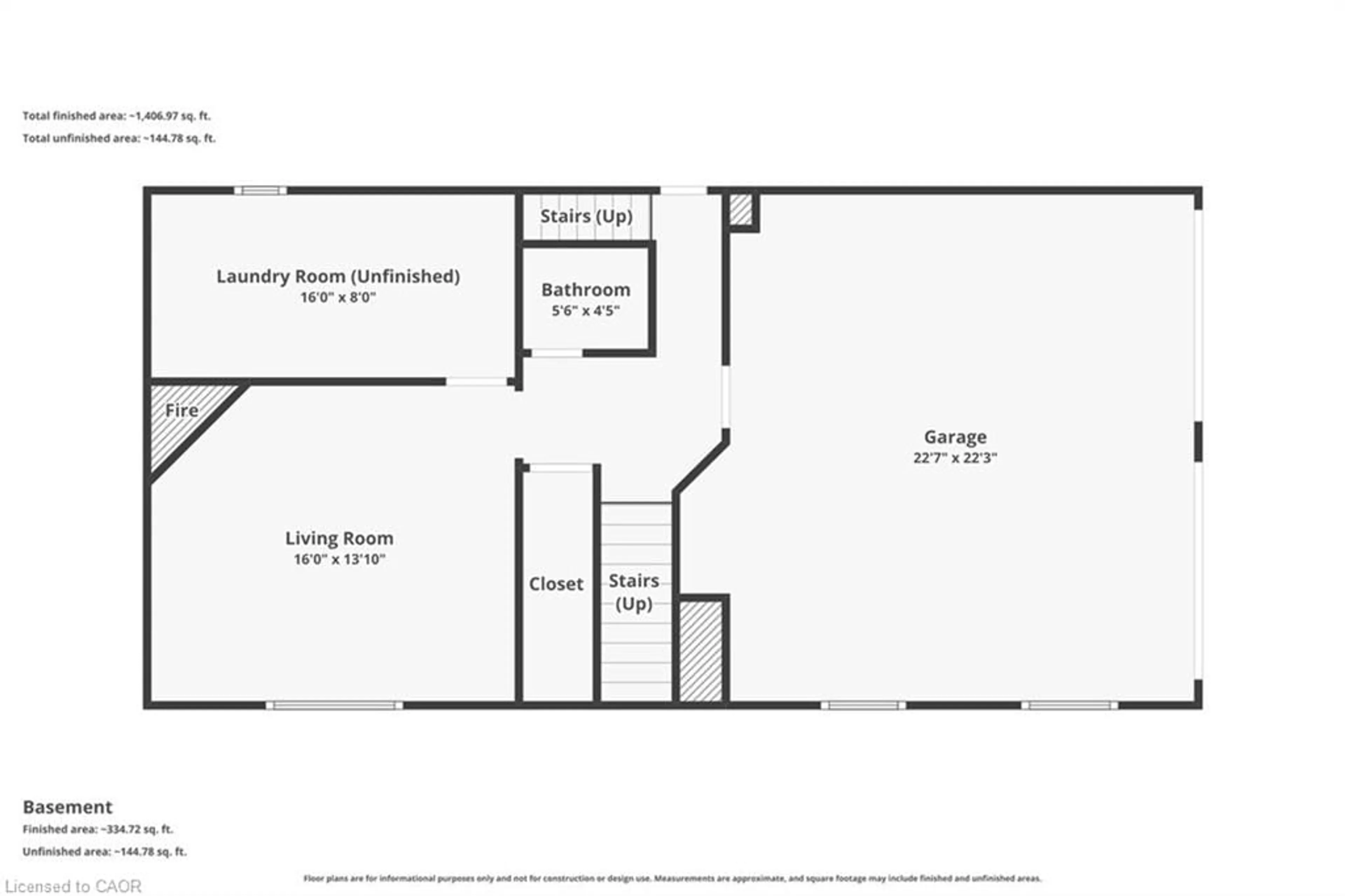
Welcome to 24 Briar Knoll, an exquisite raised bungalow gracefully nestled on a private and tranquil cul-de-sac. Arrive to a generous double car garage and an large driveway accommodating up to four vehicles, ideal for hosting guests or enjoying a safe, quiet space where kids can play or shoot hoops without the worry of a busy street. Step inside to a warm and inviting entryway, highlighted by a beautifully crafted wood staircase. The upper level showcases gleaming hardwood floors throughout, complemented by large windows that flood the space with natural light, creating a bright and airy ambiance. The thoughtfully updated kitchen is both stylish and functional, featuring rich cabinetry, granite countertops, and a versatile movable island perfect for entertaining or casual family gatherings. A secondary staircase from the kitchen provides seamless access to both the basement and garage, adding everyday convenience. From here, step out onto your walkout deck and into the large backyard, an ideal for summer barbecues, family time, and outdoor leisure! This home offers a generously sized primary bedroom, along with two additional bedrooms, providing ample space for growing families or guests. Downstairs, the finished basement invites you to unwind beside a cozy wood-burning fireplace, complete with a convenient 2-piece bathroom and direct access to the double car garage, perfectly balancing comfort and practicality. 24 Briar Knoll is where comfort, elegance, and family living come together seamlessly—an exceptional home you won’t want to miss.


Property Details

StyleBungalow Raised
View-
Age of property-
SqFt~1524 SqFt
Lot Size-
Parking Spaces6
MLS ®Number40819669
Community NameLaurentian Hills
Data SourceITSO
Listing byPEAK REALTY LTD.

Features

Heating: Forced Air, Natural Gas
Cooling: Central Air
Basement: Separate Entrance, Walk-Out Access, Full, Finished

Main Floor

Bedroom

3.12 x 2.97

Bathroom

4-Piece

Bedroom

3.15 x 2.97

Dining Room

2.74 x 3.58


Features

Sewer (Municipal)

Parking

Garage spaces 2

Garage type -

Other parking spaces 4

Total parking spaces 6


Property listed by PEAK REALTY LTD., Brokerage
Agent Banner Image
Interested in this property?Get in touch to get the inside scoop.

Market Data - Laurentian Hills

Geo Zone Map ThumbnailLaurentian Hills

Seller's Market

View Market Data

Detached house - for the past 30 days

Buyer's market Seller's market

Avg. Days on Market

Past 30 days

7 days

Compared to

2025

28 days

2024

14 days

2023

13 days

New Listings

Past 30 days

4 listings

Compared to

2025

7 listings

2024

2 listings

2023

10 listings

Units sold

Past 30 days

2 units

Compared to

2025

3 units

2024

1 unit

2023

8 units

Median Sold Price

Past 30 days

$733,000

Compared to

2025

$700,000

2024

$720,000

2023

$713,500


Population and Demographics

Overview

Total population 9280
Average household income $97,201

Age (%)

0 to 19
24%
20 to 34
23%
35 to 49
20%
50 to 64
19%
65 and plus
15%

Household composition (%)

Single family
70%
Single person
24%
Multi person
5%
Multi family
1%

Mother tongue (%)

English
80%
Others
5%
Spanish
4%
Arabic
2%
Portuguese
2%
Punjabi (Panjabi)
1%
Serbian
1%
Somali
1%

House tenancy (%)

Owners
64%
Renters
36%

What’s nearby?Essentials within 5 km

Local Logic

Transportation Scores

Estimated Budget