Contact us about this property
Highlights
Estimated valueThis is the price Wahi expects this property to sell for.
The calculation is powered by our Instant Home Value Estimate, which uses current market and property price trends to estimate your home’s value with a 90% accuracy rate.Not available
Price/Sqft$466/sqft
Monthly cost
Open Calculator
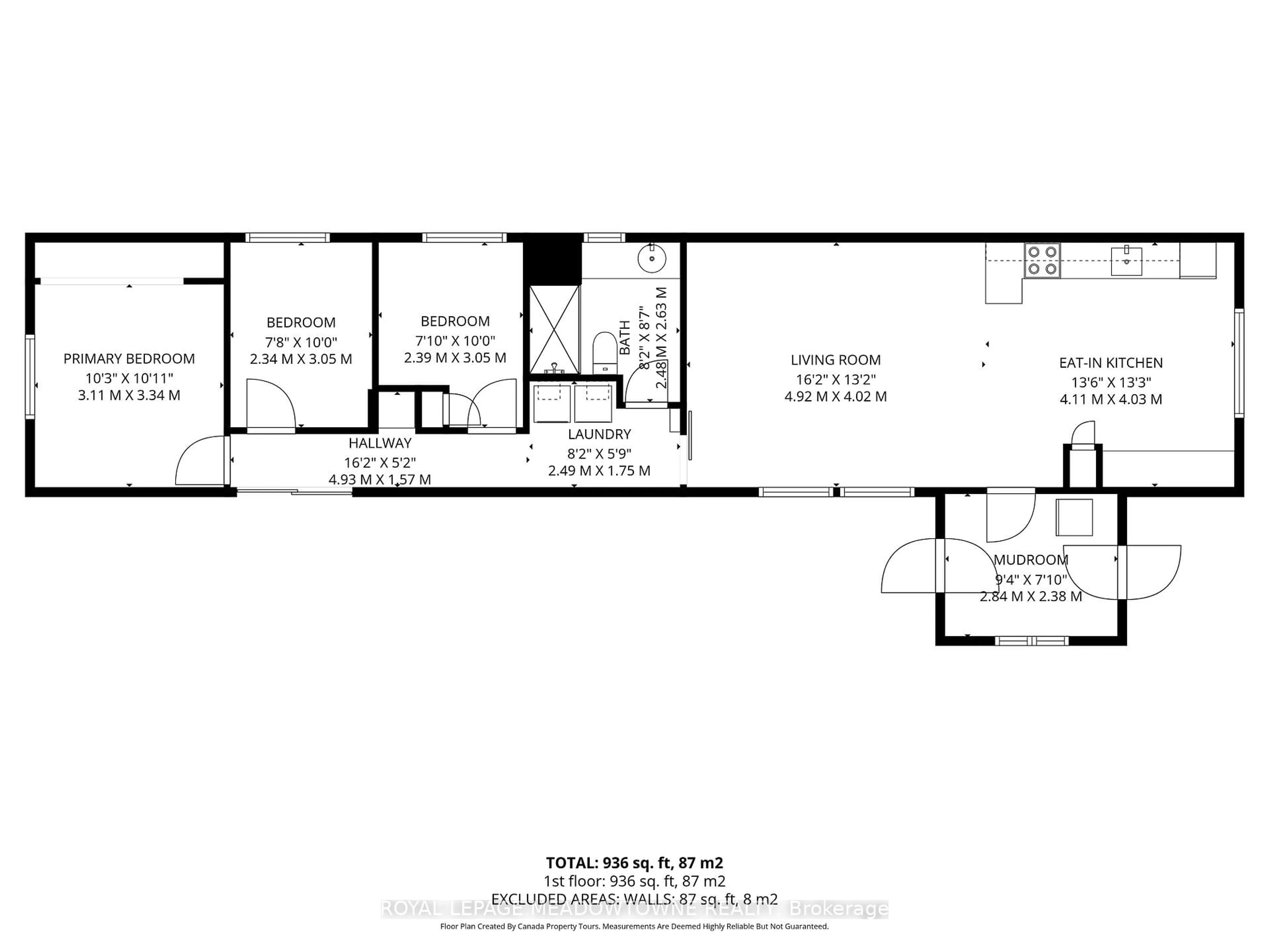
Description
Lovely, Turnkey, bright & spacious mobile home nestled on a quiet Cul-De-Sac in the Town of Erin's desirable Stanley Park. Backing on to conservation and walking distance to Stanley Park pond. Open concept living room and large eat-in kitchen with vaulted ceiling. Exterior was painted in 2024. Enjoy the peace and quiet on the new deck (2021) with Gazebo. Current $778 land lease includes property taxes, water, septic and road maintenance. Just move in and start enjoying the tranquil lifestyle!
Upcoming Open House
Property Details
Interior
Features
Main Floor
Mudroom
2.8 x 2.3W/O To Deck / Window / Linoleum
Living
4.9 x 4.2Vaulted Ceiling / Vinyl Floor
Kitchen
4.1 x 4.3Tile Floor / Combined W/Living / Skylight
Primary
3.1 x 3.3Vinyl Floor / Double Closet
Exterior
Features
Property History
31





